产品概述
产品概述MC-II方型脉冲布袋除尘器是在MC-Ⅰ型的基础上经改进修改而成的,它除了具有Ⅰ型除尘效率高、处理风量大、性能稳定、操作维修方便等特点外,还具有比I型使用效果好,不易积粉、应用范围广等特点,广泛适用于粮食食品、饲料、冶金化工、建材、医药等行业的通风除尘…
400-822-0082
在线联系

| 参数/型号 | MC24 | MC36 | MC48 | MC60 | MC72 | MC84 | MC96 | MC120 | |
| 过滤面积(m2) | 18 | 27 | 36 | 45 | 54 | 63 | 72 | 90 | |
| 滤袋数量(只) | 24 | 36 | 48 | 60 | 72 | 84 | 96 | 120 | |
| 过滤风速(L/m2.s) | 20-40 | 20-40 | 20-40 | 20-40 | 20-40 | 20-40 | 20-40 | 20-40 | |
| 过滤风量(m3/h) | 1300-2600 | 1950-3900 | 2600-5200 | 3240-6480 | 3900-7800 | 4550-9100 | 5200-10500 | 6500-13000 | |
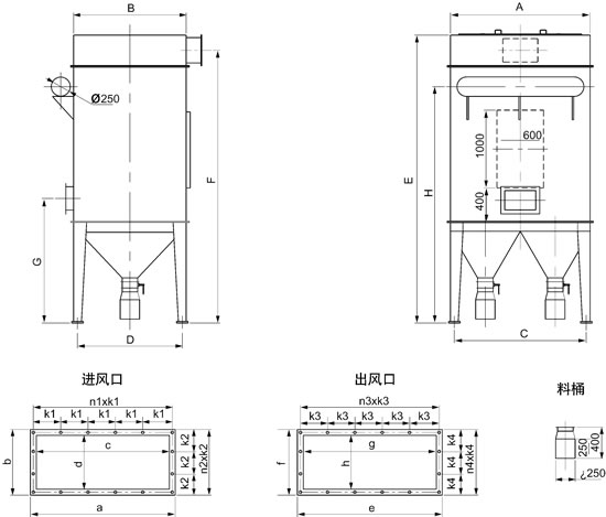
| 外形尺寸 | 长 | 1000 | 1400 | 1800 | 2200 | 2600 | 3000 | 3560 | 4360 |
|
宽×高 |
1450×3700 | 1450×3850 | 1450×4100 | ||||||
| 清灰装置 | 脉冲阀数量 | 4 | 6 | 8 | 10 | 12 | 14 | 16 | 20 |
| 耗用压缩空气量m3 |
0.07
-0.30
|
0.11
-0.40
|
0.15
-0.50
|
0.18
-0.60
|
0.22
-0.60
|
0.25
-0.90
|
0.29
-0.90
|
0.37
-0.90
|
|
| 压缩空气压力(kg/cm2) | 5-7 | ||||||||
| 参数/型号 | MC24 | MC36 | MC48 | MC60 | MC72 | MC84 | MC96 | MC120 | |
| A | 1000 | 1400 | 1800 | 2200 | 2600 | 3000 | 3560 | 4360 | |
| B | 1450 | ||||||||
| C | 780 | 1180 | 1600 | 2000 | 2400 | 1400+1400 | 1670+1670 | 2080+2080 | |
| D | 1230 | ||||||||
| E | 3700 | 3850 | 4100 | ||||||
| F | 3500 | 3600 | 3850 | ||||||
| G | 1700 | 1750 | 2000 | ||||||
| H | 3040 | 3090 | 3300 | ||||||
| a | 476 | 576 | 876 | 876 | 1076 | 676 | 776 | 876 | |
| b | 336 | 376 | |||||||
| c | 400 | 500 | 800 | 800 | 1000 | 600×2 | 700×1 | 800×2 | |
| d | 260 | 300 300×2 | |||||||
| e | 576 | 576 | 876 | 876 | 1076 | 1276 | 1326 | 1436 | |
| f | 276 | 376 | |||||||
| g | 500 | 500 | 800 | 800 | 1000 | 1200 | 1250 | 1360 | |
| h | 200 | 300 | |||||||
|
k1×h1
k1×2
|
110×4
=440
|
108×5
=540
|
120×7
=840
|
120×7
=840
|
120×7+100×2
=1040
|
110×4+100×2
=640
|
110×5+95×2
=740
|
120×7
=840
|
|
| k2×n2 | 150×2=300 | 113.3×3=340 | |||||||
|
k3×n3
k3*2
|
108×5
=540
|
108×5
=540
|
120×7
=840
|
120×7
=840
|
120×7+
100×2
=1040
|
124×10
=1240
|
120×9+
105×2
=1290
|
120×10+
100×2
=1400
|
|
| k4*n4 | 120×2=240 | 113.3×3=340 | |||||||
| 排灰口蝶阀直径 | 150 | 150 | 150 | 150 | 150 | 200 | 200 | 200 | |
上一篇:RLY系列燃油热风炉
下一篇:SQR型散热器
近日,一步干燥2025年中工作总结会议以 “线上 + 线下” 的形式圆满召开。公司董事长查国才、总经理查文浩与各条线负责人、党员及…