产品概述
该机可运用于标准料桶的提升加料,给压片机、胶囊填充机、混合机等设备加料。广泛应用于制药、化工、食品等行业中。
400-822-0082
在线联系


应用
 该机可运用于标准料桶的提升加料,给压片机、胶囊填充机、混合机等设备加料。广泛应用于制药、化工、食品等行业中。
原理
该机只要由立柱、移动底盘、下料锥斗、翻转结构、液压系统和控制系统组成。工作时将装满物料的料桶与锥斗固定,操作提升操作杆,将料桶提升一定高度后翻转神涌,将提升机移动到下料工位,提升至下料高度与设备对接,打开蝶阀出料。
特点
该机是我公司较广吸收、消化国外技术,结合我国国情研发的新机型。设备可移动,操作灵活方便,结构合理。设有防误操作装置的蝶阀,拆洗方便,易于清洗,确保生产安全。
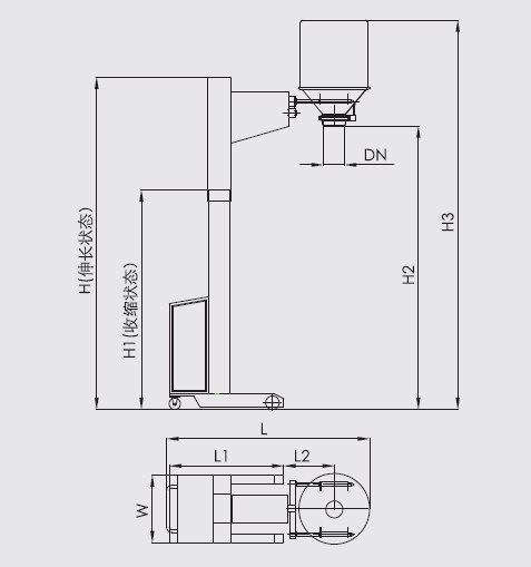
安装示意图
|
型号
|
结构尺寸
|
料桶容积
L |
总功率KW
|
|||||||
|
L
|
L1
|
L2
|
W
|
H
|
H1 |
H2
|
H3
|
|||
| YLT100 |
1700
|
1020 |
500
|
700
|
2950 |
1950
|
2500
|
3450 | 100 |
1.87
|
|
YLT150
|
1800
|
1020
|
450
|
700
|
2950
|
1950
|
2500
|
3400
|
150
|
2.05
|
上一篇:CJT系列层间提升机
下一篇:HDT单臂提升料斗混合机
近日,一步干燥2025年中工作总结会议以 “线上 + 线下” 的形式圆满召开。公司董事长查国才、总经理查文浩与各条线负责人、党员及…